EPREUVE FINALE DU
26 ème CONCOURS DIPLOMANT
« Un des
Meilleurs Ouvriers de France »
Groupe III –
Classe 5
CARRELAGE

Dossier de réalisation – Numéro d’inscription :
3538
PREAMBULE
Je
tiens à remercier les membres du COET-MOF pour l’organisation et l’accueil lors
des épreuves qualificatives de 2017, ainsi que pour leurs disponibilités à
répondre à nos nombreuses questions pendant la phase d’étude du cahier des
charges.
Je
remercie aussi tous mes partenaires fournisseurs, pour leur soutien et
accompagnement (Dons de carreaux pour les essais préalables de coupe, prêt
d’outillages pour essais avant investissement …)
Je
remercie enfin mes proches qui m’ont soutenu et encouragé tout au long de cette
réalisation.
INTRODUCTION :
Ce
document présente étape par étape les différentes phases que j’ai suivies pour
la réalisation de cet ouvrage.
Bien
que plus à l’aise dans l’exercice de mon métier de carreleur, que dans celui de
rédacteur, j’ai essayé du mieux possible, d’apporter les éléments les plus
importants pour la meilleure compréhension du lecteur.
Les
différents travaux n’ont pas tous été photographiés car j’ai été souvent seul,
concentré sur mon travail.
MATERIEL
ET MATERIAUX UTILISES :
Matériel
et outillage :
Carrelette
Rubi de 90
Scie
à ruban diamanté raimondi XT
Scie
à fil diamanté raimondi Taurus 3
Touret
à meuler Kristall 2000
.
meule diamantée cylindrique
.
meule diamantée conique
Meuleuse
d’angle D125
.
disque carrelage diamant D125 et D80
.
disque abrasif auto agrippant grain 60 BOSCH
.
disque abrasif auto agrippant grain 120 BOSCH
Outil
multi fonctions Dremel
pointe diamantée
Cales
à poncer à main diamantées



Matériaux :
Primaire
d’accrochage Eco Prim Grip MAPEI
Colle
pci Pericol fx rapid
Colle
MS 108 Bostik
Joint
Epoxy bi composant Starlike LITOKOL
Produit
de nettoyage Litonet gel LITOKOL
Ruban
Led connecté Schlutër-LIPROTEC
Pour
le choix des carreaux, principalement dans l’harmonie des couleurs et des
motifs, je suis resté dans la sobriété comme je pratique habituellement, lors
de la réalisation de mes chantiers.
GABARITS,
STRUCTURE PIRAMIDALE ET SPHERE :
Pour
les gabarits, j’ai fais le choix de les réaliser en
tôle d’acier doux, pour une meilleure précision du tracé.
J’ai
confié cette fabrication à un métallier équipé de la découpe laser.
Pour
chaque pièce, il a fallu réaliser un plan de détail coté, tenant compte du
cahier des charges et de la largeur du joint choisi.
Cette
étape fut soutenue d’échanges avec l’artisan pour arriver à valider avant
lancement en fabrication.
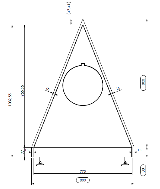
Ci dessous pour exemple le
plan de la face D :





Pour
la réalisation de la structure pyramidale, compte tenu de mon plan de charge
très important en cette année 2018, j’ai pris la décision de sous traiter cette opération et me concentrer sur mon
métier de carreleur pour ce concours.
C’est
donc une pièce mécano-soudée en tôle d’aluminium de 2 mm d’épaisseur, à la fois
rigide et légère, munie de 4 pieds sur rotules réglables en hauteur.
Comme
pour les gabarits, il a fallu réaliser un plan de détail, prenant en compte une
épaisseur de colle de 5 mm, des joints de 1 mm pour les carreaux, et une
épaisseur de mosaïque après collage de 5 mm, afin de respecter la cotation du
cahier des charges.
Plans
de détail de la structure :




La sphère est un
accessoire de décoration de vitrines, trouvé dans le commerce, elle est en
plastique, et est composée de deux parties clipsables.
Le diamètre est de
290 mm.

LE TRACE DES
PIECES :
Pour toutes les
pièces débitées à sec, j’ai utilisé un crayon porte mine de 0,5 mm, pour celles
travaillées sur les machines à eau, un marqueur fin à encre indélébile.
Pour les carreaux
de fond des faces B et D, le joint horizontal est à l’axe du cylindre.
Le joint vertical
des 4 faces, ainsi que de la base, est à l’axe de la pyramide.
Ce choix me permet
de conserver les deux bords propres au niveau des angles droits.
Je me suis limité
à trois pièces de fond par face, afin de ne pas surcharger, avec les joints, le
design de l’ouvrage.
Les photographies
qui suivent, illustrent la méthode employée pour le tracé.


LA COUPE :
Chaque fois que
possible la coupe des bords extérieurs à été réalisée
à la carrelette, en se tenant à 2 mm du tracé, permettant ainsi d’arriver au
trait final à l’aide de la meuleuse d’angle et disque abrasif (grain de 60 pour
le dégrossissage et 120 pour la finition).
Les bords droits
intérieurs sont réalisés à la meuleuse d’angle et disque carrelage et la
finition selon la même méthodologie.
Les arcs de
cercles intérieurs, seront faits à la machine à fil, les disques à la machine à
ruban, puis finis au touret à meuler.
Pour le 2018,
pièce de fond et pièces d’incrustation, j’ai utilisée
la machine à fil et la Dremel en finition.
Les ellipses ont
été biseautées afin de permettre l’affleurement avec la mosaïque intérieure du
cylindre.
Toutes les pièces
sont chanfreinées au disque abrasif ou à la cale, selon les formes et les
dimensions.
La finition des
angles intérieurs des triangles se fera à la Dremel.
La méthodologie en
images :





Avant de passer au
collage, vérification du bon assemblage de l’ensemble :
J’ai disposé et
assemblé toutes les pièces sur une table pour reconstituer chaque face, en
utilisant papier adhésif et croisillions de 1 mm.

C’est à ce moment
que j’ai constaté que certaines pièces d’incrustation s’ajustaient
difficilement ! En cause le croisillion de 1mm qui
en réalité après mesure était
de 1,3 mm.
J’ai réajusté au
polissage afin d’obtenir la meilleure régularité des joints.
LE COLLAGE DES
CARREAUX :
Au préalable j’ai
appliqué sur la structure deux couches de primaire d’accrochage, et respecté le
temps de séchage.
Les carreaux sont
graissés et collés au peigne de 10 mm.
La première étape
fut de coller la base de 80 mm, le plus précisément possible afin de garantir
le bon empilage des carreaux de face par la suite.
Pour ce faire,
j’ai tracé la ligne haute sur la structure, puis collé en calant sous les
pièces.
Bien qu’avoir
choisi une colle à prise rapide, j’ai préféré laisser un temps de séchage d’une
journée avant de poursuivre.

La suite du
collage concerne les pièces de fond en partie basse, en suivant face par face,
et en s’ajustant avec la base de 80 mm et les angles de la pyramide.


Avant de
poursuivre le collage des pointes, j’ai respecté une journée de séchage.


Le collage des
pièces d’incrustation est réalisé en respectant un temps de séchage entre
chaque pièces imbriquées ou superposées.


LE COLLAGE DE LA
MOSAÏQUE :
Le cylindre :
Avant de commencer
le collage, j’ai installer le profilé support de
ruban led, afin de venir en affleurement avec la
mosaïque.
J’ai opté pour un collage
de bandes d’une largeur de un carré en suivant les génératrices du cylindre, et
en biseautant le carré en affleurement du bord des ellipses.
Les bandes sont
découpées au cutter en évitant que la trame support ne dépasse des carrés et
gêne au collage.
La colle utilisée
est la MS 108.


La sphère :
La méthode
utilisée est le même que pour le cylindre, mais dans ce cas de figure, les
joints sont désalignés volontairement, pour un meilleur rendu compte tenu de la
géométrie du support.
Afin de limiter
l’effet de resserrement à l’approche des pôles, j’ai uniformisé la largeur des
joints à l’aide de la Dremel et du touret à meuler.


REALISATION DES
JOINTS :
Joints de 1,3 mm
J’ai choisie d’utiliser
des joints époxy, dans les teintes se rapprochant le plus de celles des
carreaux.
Pour la face A,
j’ai privilégié l’harmonie des joints avec une seule teinte pour l’imbrication
« triangles, disque, trapèzes).
L’application est
réalisée teinte après teinte avec temps de séchage intermédiaire, pour ne pas
salir les joints frais, et de faire correctement les jonctions de couleur.

MISE EN PLACE DE
LA SPHERE :
Le positionnement
est réalisé à l’aide d’un gabarit, permettant de respecter la cote de
dépassement de150 mm par rapport à la face, correspondant à la coïncidence du centre
de la sphère avec l’intersection des axes de l’elipse.
L’orientation
choisie de la sphère, symbolise celle de l’axe de rotation de la terre.
Deux points de
colle à l’intérieur du cylindre assurent son maintien.

LA PIECE
FINIE :
Sur sa plate forme de présentation.
Plate
forme
équipée de quatre roulettes, dont deux directionnelles avec freins, ainsi que d’une
prise d’alimentation secteur 220 V pour la mise sous tension du ruban led.



CONCLUSION :
Ce challenge est
devenue très rapidement pour moi, une véritable aventure, pleine d’imprévus, de
difficultés, mais aussi de réelles satisfactions, dès qu’une étape de
réalisation était terminée avec le sentiment de l’avoir réussie.
Bien que me
considérant à un bon niveau d’expertise dans l’exercice de mon métier de
carreleur, je dois avouer avoir quelques fois douter en mes capacités à
continuer tout en conciliant cette activité avec ma charge d’artisan.
Au bout de ce long
chemin parcouru, je sais ne pas avoir forcément atteint la perfection, mais je
suis heureux d’avoir participer à ce concours et je garde en confiance l’espoir
de réussir.
